网站首页
公司概况
公司简介
子公司简介
领导团队
组织架构
公司荣誉
新闻动态
集团新闻
公司新闻
公示公告
行业新闻
媒体聚集
公司产品
主打产品
中成药
化学药物
医疗器械
大健康产品
产业板块
中药材种植
中药材加工
中成药
化学药物
大健康
医药研发
检验检测
医药流通
医疗器械
营销服务
营销服务
营销网络
科研质量
研发体系
研发能力
研发成果
质量管理
人力资源
人才建设
招聘信息
投资者关系
股票信息
公司公告
投教专栏
党建引领
党的建设
群团活动
文化生活
社会责任
站内搜索
网站首页
公司概况
公司简介
子公司简介
领导团队
组织架构
公司荣誉
新闻动态
集团新闻
公司新闻
公示公告
行业新闻
媒体聚集
公司产品
主打产品
中成药
化学药物
医疗器械
大健康产品
产业板块
中药材种植
中药材加工
中成药
化学药物
大健康
医药研发
检验检测
医药流通
医疗器械
营销服务
营销服务
营销网络
科研质量
研发体系
研发能力
研发成果
质量管理
人力资源
人才建设
招聘信息
投资者关系
股票信息
公司公告
投教专栏
党建引领
党的建设
群团活动
文化生活
社会责任
News Focus
新闻动态
首页
>
新闻动态
>
公示公告
>
集团新闻
公司新闻
公示公告
行业新闻
媒体聚集
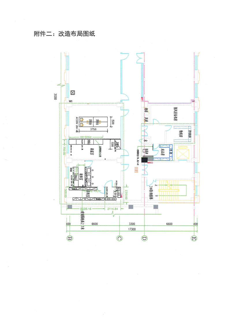
甘肃陇神戎发药业股份有限公司办公室二层中试实验室局部改造询比价公告
日期:2026-01-07
来源:
浏览次数:
分享:
X
在线商城
陇神京东元胡止痛滴丸
百利青禾店
普安康宣肺止嗽合剂
抖音商城
抖音